试验设备
消防产品检测设备
防水防尘试验设备
无人机测试设备
气候环境试验设备
安规检测设备
家电能效测试设备
电梯试验设备
光缆光纤试验机
灯具试验设备
开关试验设备
卫浴产品试验机
门锁椅试验机
产品手册下载
客户案例
淋雨试验设备
消防试验设备
无人机试验设备
环境试验设备
安规测试设备
关于科翔
企业介绍
发展历程
证书专利
代表客户
竞争优势
经营理念
组织架构
企业团队
产品手册
检测资讯
消防检测
储能淋雨试验
无人机测试
IP防护检测
安规检测
汽车淋雨试验
气候环境模拟
军标防护试验
联系科翔
联系方式
网络留言
售后服务
中文版
English
账号登录
登 录
注册 有惊喜 >
手机注册
注 册
已有账号 立即登录 >
注册成功
您已成功注册
首页
检测资讯
消防检测
消防检测
储能淋雨试验
IP防护试验
无人机测试
安规检测
汽车淋雨试验
气候环境模拟
军标防护试验
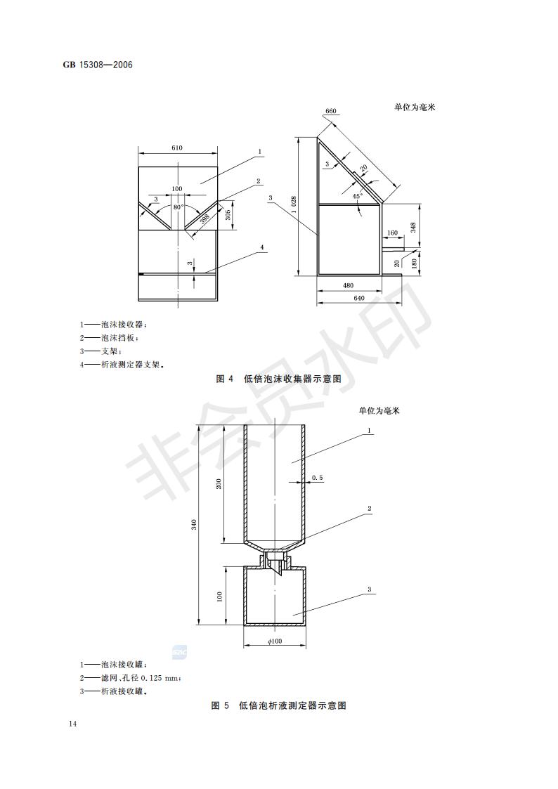
GB15308-2006 泡沫灭火剂
2023-03-31
上一条
GB 27897-2011 A类泡沫灭火剂
2023-03-31
下一条
GB6246-2011标准消防水带内径塞规计量不合格的原因
2022-04-21
分享到
返回列表
客服留言
QQ交谈
微信客服
返回顶部